Nowoczesny dom 4-pokojowy z ogrodem

699 000 zł
7 901,00 zł/m²

Nowoczesny dom 4-pokojowy z ogrodem | 88,47 m² | Blisko Puszczy Zielonki

Zapraszamy do zapoznania się z ofertą nowoczesnego domu w zabudowie bliźniaczej, położonego w malowniczym otoczeniu Parku Krajobrazowego, w pobliżu Puszczy Zielonki. To idealna propozycja dla osób szukających komfortu, bliskości natury i świetnego połączenia z miastem.

Powierzchnia całkowita: 88,47 m²

Powierzchnia ogrodu: 58,79 m²

Doskonała lokalizacja: szybki dojazd do Poznania i Gniezna (S5, A2), przystanek kolejowy w odległości 200 m

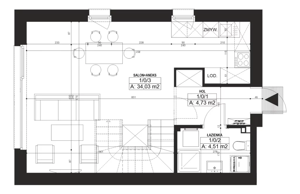
Rozkład pomieszczeń:

Parter:

  • Hol – 4,73 m²
  • Łazienka – 4,51 m²
  • Przestronny salon z aneksem kuchennym – 34,03 m²

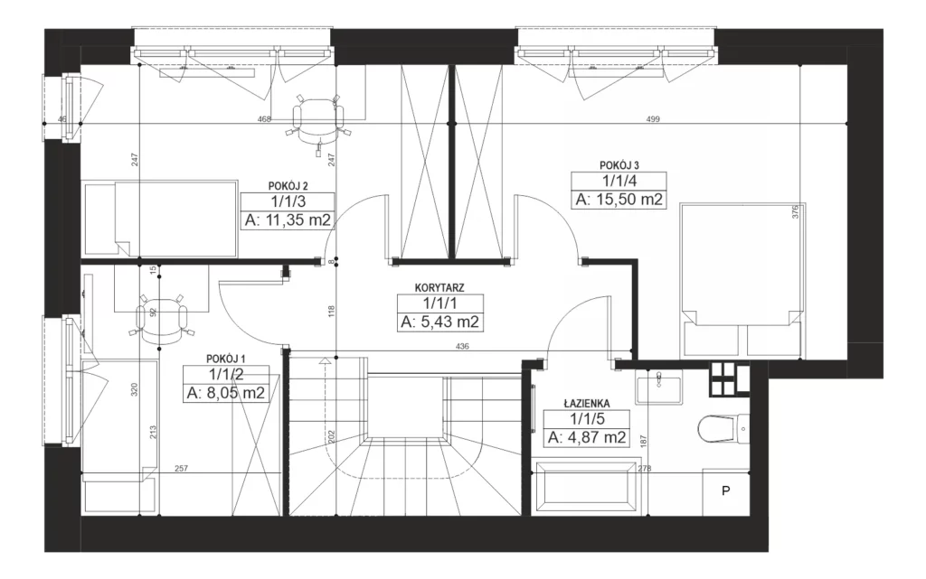
Piętro:

  • Korytarz – 5,43 m²
  • Pokój 1 – 8,05 m²
  • Pokój 2 – 11,35 m²
  • Pokój 3 – 15,50 m²
  • Łazienka – 4,87 m²

Standard wykończenia:

  • Nowoczesne, energooszczędne rozwiązania
  • Rolety z silnikami elektrycznymi
  • Pompa ciepła
  • Ogrzewanie podłogowe w całym domu
  • Wyprowadzenie pod instalację fotowoltaiczną, klimatyzację

W pobliżu:

  • Szkoły i przedszkola
  • Sklepy i punkty usługowe
  • Przystanek kolejowy (200 m) – szybki dojazd do centrum Poznania i Gniezna

Korzyści z zakupu nieruchomości od HomeFlex:

  • bez prowizji
  • brak podatku PCC (2%),
  • żadnych ukrytych kosztów

Oferujemy możliwość wykończenia pod klucz oraz pomoc w uzyskaniu kredytu.

Nie przegap okazji – zamieszkaj w miejscu, gdzie natura spotyka nowoczesność!

Skontaktuj się z nami już dziś, aby umówić się na prezentację.

Powierzchnia: 88.47 m²
Działka: 101 m²
Rynek: Pierwotny
Liczba pokoi: 4
Liczba łazienek: 2
Piętro: parter, 1
Winda: nie
Rok budowy: 2026
Standard: do wykończenia

Jeśli zainteresowała Cię ta oferta zadzwoń lub prześlij swoje zgłoszenie, a nasz doradca niebawem skontaktuje się z Tobą.

Marek Kostrzyński
+48 698 648 964

Jeśli zainteresowała Cię ta oferta zadzwoń lub prześlij swoje zgłoszenie, a nasz doradca niebawem skontaktuje się z Tobą.

Marek Kostrzyński
+48 698 648 964
Scroll to Top

Proszę o kontakt w sprawie tej oferty mieszkaniowej.

Proszę o kontakt w sprawie tej oferty mieszkaniowej.

Jeśli zainteresowała Cię ta oferta zadzwoń lub prześlij swoje zgłoszenie, a nasz doradca niebawem skontaktuje się z Tobą.

Cyprian Ewald
793 990 582

Jeśli zainteresowała Cię ta oferta zadzwoń lub prześlij swoje zgłoszenie, a nasz doradca niebawem skontaktuje się z Tobą.

Marek Kostrzyński
698 648 964

Jeśli zainteresowała Cię ta oferta zadzwoń lub prześlij swoje zgłoszenie, a nasz doradca niebawem skontaktuje się z Tobą.

Damian Rożewski
Nr licencji pośrednika: 23975
732 432 920